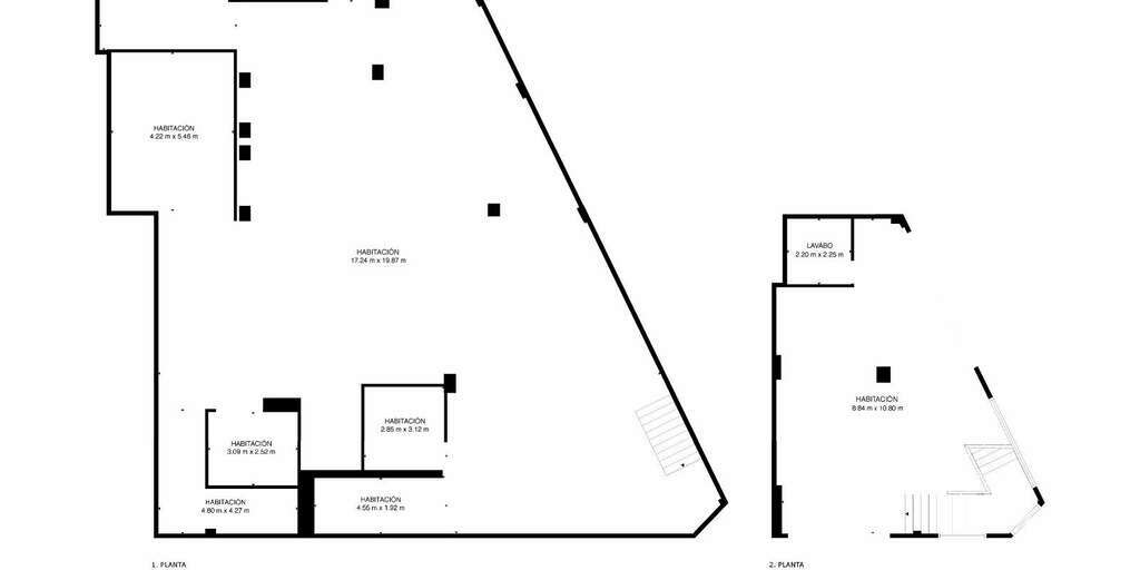
Great premises in Puerto De Santiago, it has two floors, which has a total area of 448 m2. The first floor is very luminous, as it has glass windows on both sides, it has a very spacious and new toilet, it has an area of approximately 100 m2. The second floor is very spacious, with a surface area of 331 m2, it also has a toilet and small cubicles. This local is located in a very strategic area, close to the town hall, supermarkets and more shops. Puerto de Santiago is one of the population entities that make up the municipality of Santiago del Teide, on the island of Tenerife -Canary Islands, Spain. Situated on the coast, taking advantage of a small cove protected by a small breakwater, it was one of the most important natural refuges on the west coast of the island. In recent years it has become one of Tenerife’s most attractive tourist resorts, closely linked to the Los Gigantes cliffs and La Arena beach. IBI: €530/year. Community fees: €100/month. Year of construction: 2001. Asten Realty reference: 8218.







