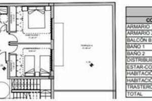
Vivienda Bajo A - 2 bedroom flat located on the ground floor of a new building. The living area is 76 m2. Both bedrooms have fitted wardrobes and windows to the rear of the building, which has a large terrace of 41 m2. There is an open plan kitchen, dining room and living room. A complete bathroom concludes the composition of this flat. Situated in the popular resort of Playa de San Juan, this new construction is located in the quieter part of the town, but within walking distance to the centre with its numerous bars and restaurants. There are 8 flats in total and most flats will come with a garage space and a storage room. There is a lift in the building. Asten reference: 8156.





































