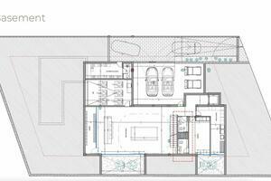
Villa 5 bedrooms for sale in the area of Abama Golf Resort, prestigious residencial area, close to the 5 star hotel, managed by Ritz Carlton. The house will be ready in December 2022, including fully equipped kitchen and bathrooms. Furniture is not included.









