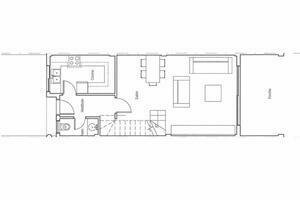
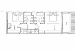
ЭКСКЛЮЗИВНАЯ ПРОДАЖА ТАУНХАУСА С ВИДОМ НА ОКЕАН И БАССЕЙНОМ в ПУЭРТО-САНТЬЯГО, Urb. PLAYA NEGRA II. Таунхаус построен на участке площадью 108 м2. Он состоит из 3 этажей с общей площадью 159 м2 и имеет 3 спальни (2 спальни согласно регистру). На первом этаже находится просторная гостиная-столовая с выходом в сад площадью 19 м2 с панорамным видом на море и соседний остров Ла Гомера с его великолепными закатами; полностью новая отдельная кухня с высококлассной бытовой техникой и туалет. Удобная лестница ведет на верхний этаж, где находятся две спальни со встроенными шкафами и две ванные комнаты с ванной. Одна из спален является главной, с ванной комнатой и балконом с потрясающим видом на океан. На нижнем этаже расположены третья спальня и просторный частный гараж. Есть возможность оборудовать дополнительную спальню на первом этаже. Недвижимость находится в идеальном состоянии, готова к заселению. Продается с мебелью и центральным кондиционером. Выделить мраморные полы во всей квартире. Жилой комплекс очень ухоженный, имеет общие бассейны, один из которых подогреваемый, и приятные общие зоны. ПУЭРТО-САНТИАГО - прибрежный район с лучшим климатом на острове и полной инфраструктурой с супермаркетами, ресторанами, пляжами и набережной. Отсюда легко добраться до автомагистрали. Идеальный вариант в качестве постоянного семейного жилья или инвестиции. IBI: €548/год. Коммунальные расходы: €101/месяц. Год постройки: 2019. Ref Asten Realty: 9845.


































